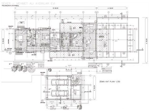
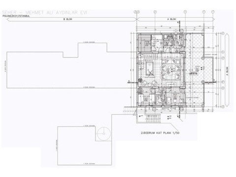
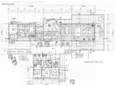
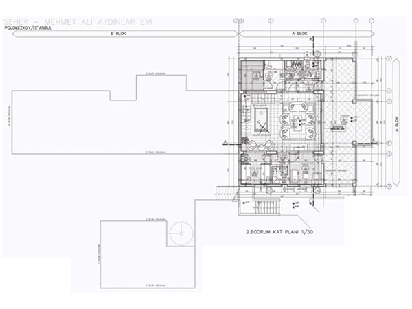
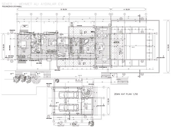
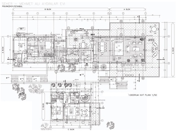
M.A.A ResıdenceM.A.A ResıdencePerşembe, Ekim 23, 2014geyrangeyran mimarlık, kenan geyran, konut mimarı, konut mimarisi, konut tasarımları, mimari tasarım, villa mimarı, villa tasarımları01.5 K