| Project Name | Medicana Ankara Hospital |
| Location | Söğütözü / Ankara |
| Number Of Beds | 146 |
| Originator | Geyran Mimarlık Atölyesi LTD ŞTİ |
| Owner | Işıl Sağlık Hizmetleri A.Ş. |
| Contractor | Işıl Sağlık Hizmetleri A.Ş. |
| Design Date | 2007-2008 |
| Construction Date | 2007-2009 |
| Site Area | 5.500 sqm |
| Total gross area | 20.000 sqm |
| Project Type | Private Health Facility |
| Construction Type | Reinforced Concrete Frame |
| Architectural Design | Geyran Mimarlık Atölyesi LTD. ŞTİ. |
| Electrical Design | Elektra Mühendislik LTD. ŞTİ. |
| Mechanical Design | Standart Mühendislik TES. İNŞ. SAN. Ve TİC. LTD. ŞTİ |
| Interior Design | Geyran Mimarlık Atölyesi LTD. ŞTİ. |
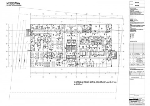
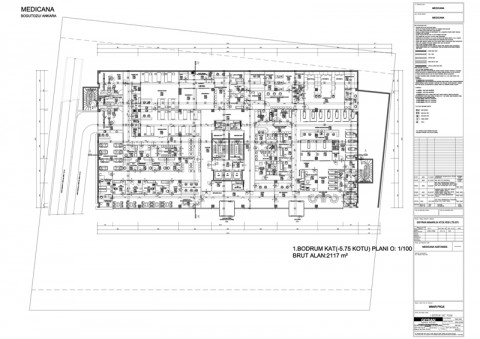
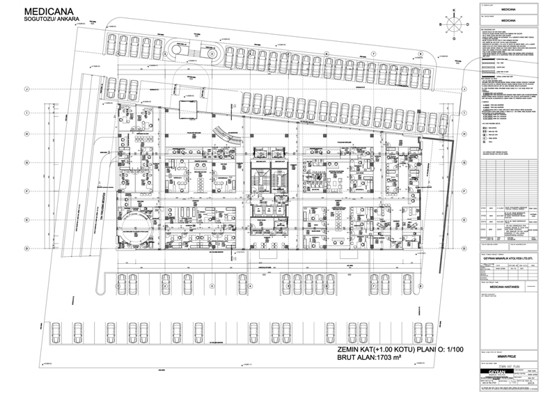
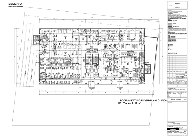
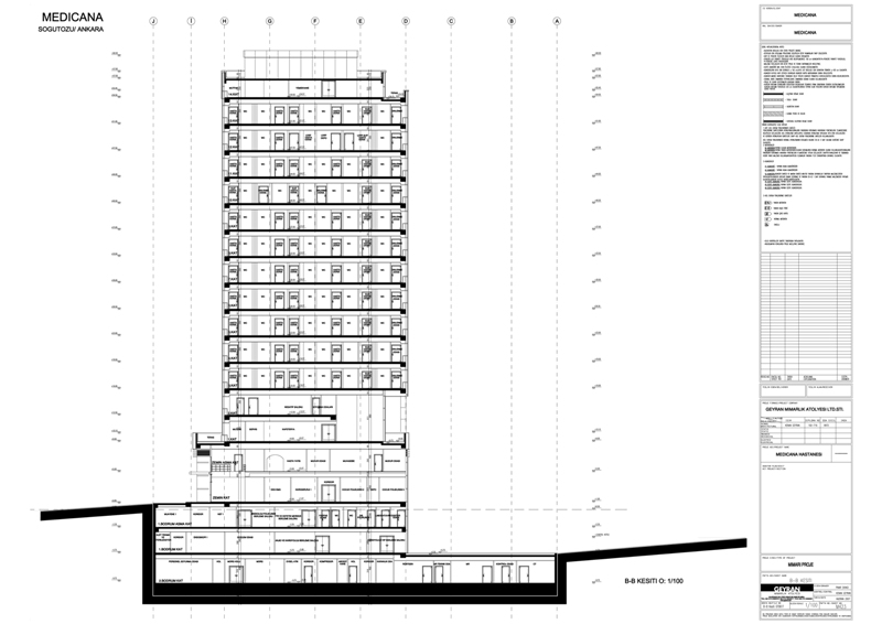
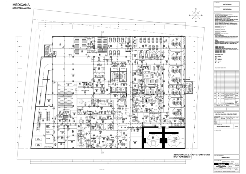
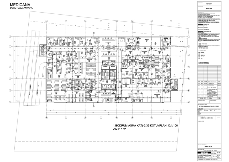
Medicana Hospital is located in Söğütözü district of Ankara. The overall indoors area of the private hospital is 20.000 m². The total inpatient bed availability of the private health care institute is 146. Medicana Hospital comprises of Radiology, clinical laboratory, pathology laboratory, angiography, endoscopy, nuclear medicine center, radiation oncology, surgical procedure rooms, KVC surgery rooms, internal disease intensive care, surgical intensive care, KVC intensive care, coroner intensive care, neonatal intensive care, emergency unit, dialysis, policlinics, IVF (in vitro fertilization) center, delivery room, inpatient services, VIP inpatient service, gynecology inpatient service with LPDR room, cafeteria, mess hall, administrative units, central sterilization unit, physical therapy and rehabilitation center, laundry, call center and indoors parking lot sections.
Medicana Hospital project start – up date is August 2007 and the architectural project of the private hospital is completed in January 2008. Construction activities for the private health care institution started in November 2007 and completed in January 2009.
All hospital projects carried out under the structure of Geyran Architecture Workshop Co. Ltd fulfill the requirements of “Regulation on Fire Protection of the Buildings”, “Regulation on Private Hospitals” and all other relevant regulations. The requirements of the relevant regulations on private hospital designs are strictly adhered to.































