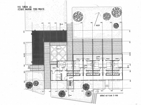
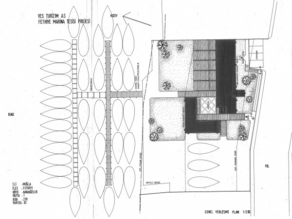
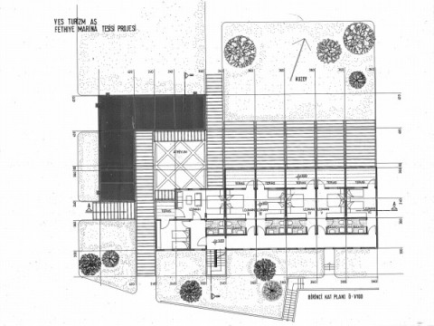
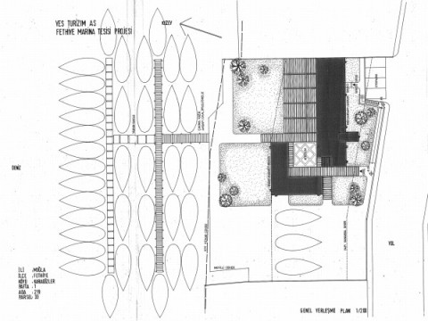
Yes Tourızm Co.Fethiye Marıne B.Yes Tourizm Co.Fethiye Marine Building Yes Tourızm Co.Fethiye Marıne B.Salı, Ağustos 19, 2014geyrankafeterya mimari, kenan geyran, Otel mimarı, otelm mimarisi, restaurant mimarı, turizm mimarisi, turizm yapıları, Yes Tourizm Co.Fethiye Marine Building01.5 K