| Project Name | Orjin Hospital |
| Location | Ordu |
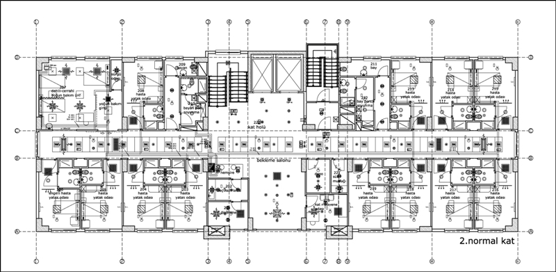
| Number Of Beds | 34 |
| Originator | Geyran Architecture Workshop Ltd. Co. |
| Owner | Orjin Sağlık Hizmetleri A.Ş. |
| Contractor | Orjin Sağlık Hizmetleri A.Ş. |
| Design Date | 2008-2009 |
| Construction Date | 2008-2009 |
| Site Area | |
| Total gross area | 4118 sqm |
| Project Type | Private Health Facility |
| Construction Type | Reinforced Concrete Frame |
| Architectural Design | Geyran Architecture Workshop Ltd. Co. |
| Interior Design | Geyran Architecture Workshop Ltd. Co. |
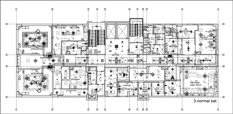
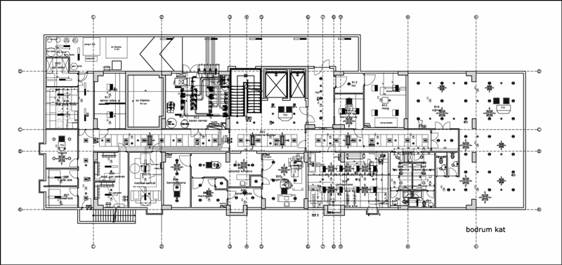
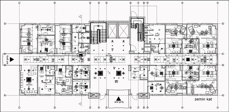
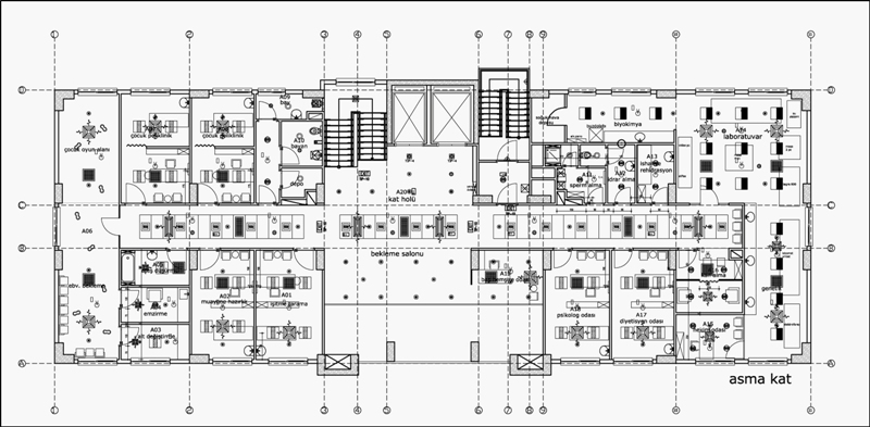
Or-Jin Ordu Gynecology and Pediatric Hospital is located in Ordu. The private hospital covering an overall indoors area of 4118 m² has inpatient bed availability for 38 patients.All hospital projects carried out under the structure of Geyran Architecture Workshop Co. Ltd fulfill the requirements of “Regulation on Fire Protection of the Buildings”, “Regulation on Private Hospitals” and all other relevant regulations. The requirements of the relevant regulations on private hospital designs are strictly adhered to.















