Geyran Architects | Hospital Project | Healthcare Project |
    Geyran Architects | Hospital Project | Healthcare Project |
    • Home
    • About US
      • Company
      • Qualıfıcatıon Documents
      • Presentatıon Catalogue
    • PORTFOLIO
    • Archıtecture Consultancy
    • References
    • News
    • Contact US
    • Home
    • About US
      • Company
      • Qualıfıcatıon Documents
      • Presentatıon Catalogue
    • PORTFOLIO
    • Archıtecture Consultancy
    • References
    • News
    • Contact US

    1408370828_facebook 1408370842_twitter 1408370851_pinterest 1408370867_google

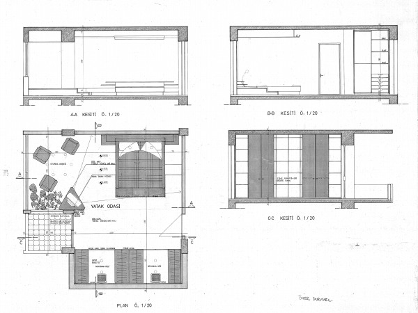
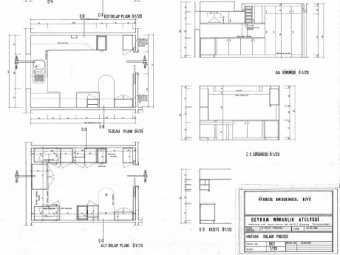
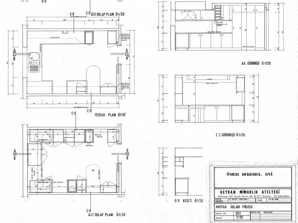
      Ö.D Resıdence

      Ö.D Residence

      Ö.D ResıdencePazar, Temmuz 20, 2014geyran
      • geyran mimarlık, kenan geyran, konut mimarı, konut mimarisi, konut tasarımları, mimari tasarım, villa mimarı, villa tasarımları
      • 0
      • 1.7 K