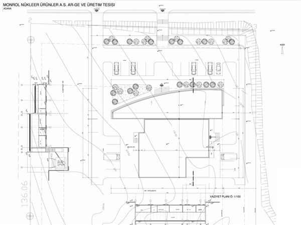
| Project Name | Monrol Adana Nuclear Medicine Products Industry |
| Location | Hacı Sabancı Organize Sanayi Bölgesi/Adana |
| Number Of Beds | |
| Originator | Geyran Architecture Workshop Ltd. Co. |
| Owner | Monrol Nükleer Ürünler A.Ş. |
| Contractor | Monrol Nükleer Ürünler A.Ş. |
| Design Date | 2005-2005 |
| Construction Date | |
| Site Area | 1092 sqm |
| Total Gross Area | 850 sqm |
| Project Type | |
| Construction Type | Reinforced Concrete Frame |
| Architectural Design | Geyran Architecture Workshop Ltd. Co. |
| Structural Design | |
| Electrical Design | |
| Mechanical Design |



















