| Project Name | Hayri Sivrikaya Hospital Dialysis Units Building |
| Location | Kervan Mevki/Düzce |
| Number Of Beds | |
| Originator | Geyran Mimarlık Atölyesi LTD ŞTİ. |
| Owner | Doğsan Özel Sağlık Hizmetleri Ticaret Ve Sanayi Ltd. Şti.Hastanesi |
| Contractor | Doğsan Özel Sağlık Hizmetleri Ticaret Ve Sanayi Ltd. Şti.Hastanesi |
| Design Date | 2005-2005 |
| Construction Date | 2006-2007 |
| Site Area | |
| Total gross area | 1.050 sqm |
| Project Type | Private Health Facility |
| Construction Type | Reinforced Concrete Frame |
| Architectural Design | Geyran Mimarlık Atölyesi LTD. ŞTİ |
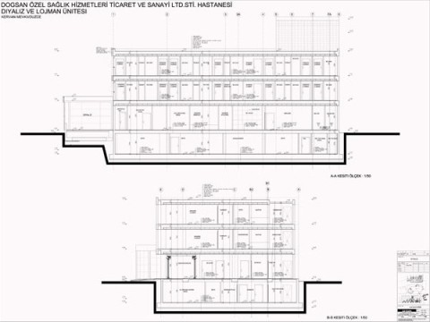
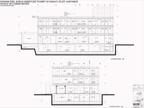
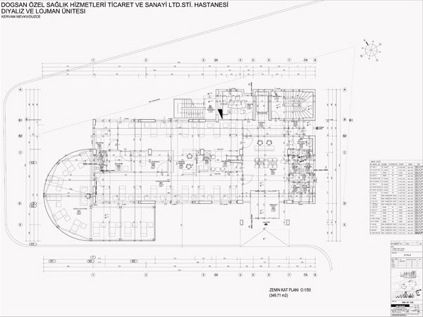
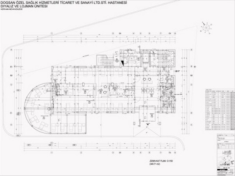
The Dialysis Building is planned as an annex to the Hayri Sivrikaya Hospital located at Kervan Locality of Düzce. The dialysis building comprises of 3 dialysis rooms, isolation rooms, emergency room, physicians room and staff residence sections.
The architectural project studies for the dialysis building started in November 2005 and delivered in December 2005. Construction activities for the dialysis building started in March 2006 and completed in April 2007.
All hospital projects carried out under the structure of Geyran Architecture Workshop Co. Ltd fulfill the requirements of “Regulation on Fire Protection of the Buildings”, “Regulation on Private Hospitals” and all other relevant regulations. The requirements of the relevant regulations on private hospital designs are strictly adhered to.



