| Project Name | Hayri Sivrikaya Hospital |
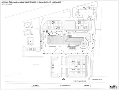
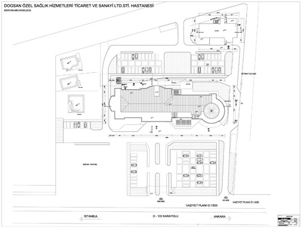
| Location | Kervan Mevki/Düzce |
| Number Of Beds | 52 |
| Originator | Geyran Architecture Workshop Ltd. Co. |
| Owner | Doğsan Özel Sağlık Hizmetleri Ticaret Ve Sanayi Ltd. Şti.Hastanesi |
| Contractor | Doğsan Özel Sağlık Hizmetleri Ticaret Ve Sanayi Ltd. Şti.Hastanesi |
| Design Date | 2005-2005 |
| Construction Date | 2005-2006 |
| Site Area | |
| Total gross area | 7.000 sqm |
| Project Type | Private Health Facility |
| Construction Type | Reinforced Concrete Frame |
| Architectural Design | Geyran Architecture Workshop Ltd. Co. |
| Structural Design | |
| Interior Design | Geyran Architecture Workshop Ltd. Co. |
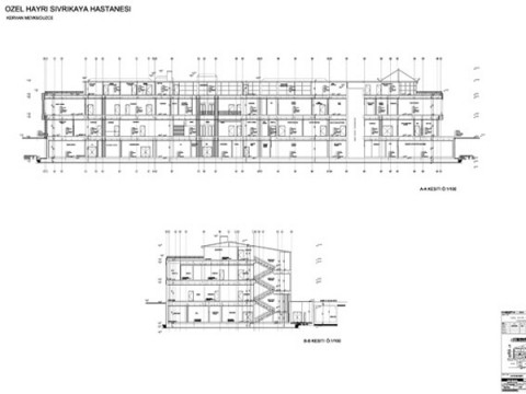
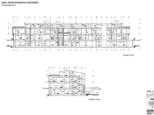
Hayri Sivrikaya Hospital is located at Kervan Locality of Düzce. The overall indoors area of the private hospital is 7000 m². The private health care facility has total inpatient bed availability for 52 patients. The private hospital comprises of Radiology, clinic laboratory, physical therapy and rehabilitation center, policlinics, emergency unit, inpatient services, surgery rooms, internal disease and surgery intensive care units, neonatal intensive care, endoscopy, central sterilization, laundry, administrative units and cafeteria sections.
All hospital projects carried out under the structure of Geyran Architecture Workshop Co. Ltd fulfill the requirements of “Regulation on Fire Protection of the Buildings”, “Regulation on Private Hospitals” and all other relevant regulations. The requirements of the relevant regulations on private hospital designs are strictly adhered to.


















